Stair Tread Dimensions

Stair Tread Dimensions

When embarking on a home improvement project that involves stairs, understanding the importance of stair tread dimensions is crucial. Stair treads are the horizontal parts of the stairs that you step on, and their dimensions play a significant role in the safety, comfort, and overall aesthetics of your staircase. Whether you're building a new staircase or renovating an existing one, getting the stair tread dimensions right is essential for a successful project.

Understanding Stair Tread Dimensions

Stair tread dimensions refer to the width and depth of the treads. These measurements are critical for ensuring that the stairs are comfortable and safe to use. The standard depth for stair treads is typically between 10 to 11 inches, but this can vary depending on local building codes and personal preferences. The width of the treads should be consistent with the width of the staircase to ensure stability and ease of use.

Importance of Proper Stair Tread Dimensions

Proper stair tread dimensions are vital for several reasons:

  • Safety: Correct dimensions ensure that the stairs are safe to use, reducing the risk of trips and falls.
  • Comfort: Well-proportioned treads make it easier to climb and descend the stairs, enhancing overall comfort.
  • Aesthetics: Consistent and appropriately sized treads contribute to the visual appeal of the staircase.
  • Compliance: Adhering to local building codes and standards ensures that your staircase meets regulatory requirements.

Standard Stair Tread Dimensions

While local building codes may vary, there are some generally accepted standards for stair tread dimensions. These standards are designed to balance safety, comfort, and functionality. Here are some key points to consider:

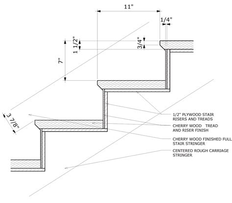
  • Depth: The depth of a stair tread should be at least 10 inches, but it can be up to 11 inches. This range provides a good balance between comfort and safety.
  • Width: The width of the treads should match the width of the staircase. For residential use, a minimum width of 36 inches is recommended, but wider treads can be used for added comfort and accessibility.
  • Rise: The rise, or the vertical distance between treads, should be between 7 to 7.75 inches. This ensures that the stairs are not too steep, making them easier to climb.

Here is a table summarizing the standard stair tread dimensions:

Dimension Standard Range
Depth 10 to 11 inches
Width Minimum 36 inches
Rise 7 to 7.75 inches

Measuring Stair Tread Dimensions

Before you start building or renovating your staircase, it's essential to measure the existing stair tread dimensions accurately. Here are the steps to measure your stair treads:

  • Use a tape measure to determine the depth of each tread. Measure from the front edge of the tread to the back edge.
  • Measure the width of each tread from one side to the other.
  • Check the rise by measuring the vertical distance between the top of one tread and the top of the next.

📏 Note: Ensure that your measurements are precise to avoid any discrepancies in the final construction.

Choosing the Right Materials for Stair Treads

Selecting the right materials for your stair treads is as important as getting the stair tread dimensions right. The material you choose will affect the durability, appearance, and maintenance requirements of your staircase. Here are some popular options:

  • Wood: Wooden treads are a classic choice that offers warmth and natural beauty. They are available in various types, such as oak, maple, and cherry.
  • Concrete: Concrete treads are durable and low-maintenance, making them ideal for outdoor or high-traffic areas.
  • Metal: Metal treads, such as those made from steel or aluminum, are strong and resistant to wear and tear. They are often used in industrial or modern settings.
  • Tile: Tile treads come in a variety of colors and patterns, allowing for customization. They are easy to clean and maintain.

Installing Stair Treads

Once you have the correct stair tread dimensions and materials, you can proceed with the installation. Here are the steps to install stair treads:

  • Measure and mark the positions for the treads on the stringers (the side supports of the staircase).
  • Cut the treads to the correct size using a saw. Ensure that the cuts are precise to fit the measurements accurately.
  • Attach the treads to the stringers using screws or nails. Make sure they are securely fastened and level.
  • If necessary, add nosing (the front edge of the tread) to enhance the appearance and safety of the stairs.

🛠️ Note: Always wear safety gear, such as gloves and safety glasses, when cutting and installing stair treads.

Maintaining Stair Treads

Regular maintenance is essential to keep your stair treads in good condition and ensure their longevity. Here are some tips for maintaining your stair treads:

  • Clean the treads regularly to remove dirt, dust, and debris. Use a broom or vacuum for dry cleaning and a mild detergent for wet cleaning.
  • Inspect the treads for any signs of wear and tear, such as cracks or loose screws. Address any issues promptly to prevent further damage.
  • Apply a sealant or finish to wooden treads to protect them from moisture and wear. Reapply as needed to maintain their appearance and durability.

By following these maintenance tips, you can ensure that your stair treads remain safe and attractive for years to come.

In conclusion, understanding and correctly implementing stair tread dimensions is crucial for a safe, comfortable, and aesthetically pleasing staircase. Whether you’re building a new staircase or renovating an existing one, paying attention to the dimensions, materials, and installation process will ensure a successful project. Regular maintenance will help prolong the life of your stair treads, keeping them in excellent condition for years to come.

Related Terms:

  • 3d stair calculator with diagram
  • stair tread dimensions in mm
  • standard stair tread dimensions
  • typical stair tread length
  • how to calculate stair size
  • australian standard tread depth chart