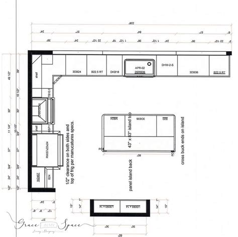
Plan Of Kitchen Layout

Plan Of Kitchen Layout

Designing a kitchen is an exciting yet challenging task that requires careful planning and consideration. One of the most crucial aspects of this process is developing a well-thought-out Plan Of Kitchen Layout. A good kitchen layout not only enhances the functionality and efficiency of the space but also contributes to its overall aesthetic appeal. Whether you are renovating an existing kitchen or designing a new one, understanding the key elements of a Plan Of Kitchen Layout is essential.

Understanding the Basics of Kitchen Layout

A Plan Of Kitchen Layout involves arranging the various components of the kitchen in a way that maximizes space and functionality. The layout should consider the flow of movement, the placement of appliances, and the storage needs. There are several common kitchen layouts, each with its own advantages and disadvantages.

Common Kitchen Layouts

The most common kitchen layouts include:

  • One-Wall Kitchen: Ideal for small spaces, this layout features all appliances and cabinets along a single wall.
  • Galley Kitchen: This layout consists of two parallel walls with cabinets and appliances, creating a narrow corridor. It is efficient for small to medium-sized kitchens.
  • L-Shaped Kitchen: This layout uses two perpendicular walls, forming an L shape. It is versatile and can accommodate various kitchen sizes.
  • U-Shaped Kitchen: This layout features three walls of cabinets and appliances, forming a U shape. It is great for larger kitchens and provides ample counter space.
  • Island Kitchen: This layout includes a central island that can be used for additional counter space, storage, or seating. It is suitable for open-concept kitchens.

Key Considerations for a Plan Of Kitchen Layout

When creating a Plan Of Kitchen Layout, several key considerations should be kept in mind to ensure a functional and efficient space.

Work Triangle

The work triangle is a fundamental concept in kitchen design that involves the placement of the three main work areas: the sink, the stove, and the refrigerator. These areas should be positioned in a way that forms a triangle, with each side of the triangle being between 4 and 9 feet long. This layout minimizes the distance between these key areas, making cooking and food preparation more efficient.

💡 Note: The work triangle concept is particularly important in smaller kitchens where space is limited.

Traffic Flow

Consider the flow of traffic in the kitchen. The layout should allow for easy movement between the different work areas and avoid congestion. In open-concept kitchens, it is essential to consider the flow from the kitchen to adjacent living spaces.

Storage Needs

Assess your storage needs and plan accordingly. Cabinets, pantries, and shelves should be strategically placed to maximize storage space and keep frequently used items within easy reach. Consider using vertical space with tall cabinets or wall-mounted shelves.

Appliance Placement

The placement of appliances is crucial for both functionality and safety. Ensure that appliances are positioned in a way that allows for easy access and use. For example, the stove should be placed near the sink for easy cleanup, and the refrigerator should be located in a convenient spot for food storage and retrieval.

Lighting

Proper lighting is essential for a functional kitchen. Include a combination of ambient, task, and accent lighting to ensure that all areas of the kitchen are well-lit. Consider using under-cabinet lighting for task areas and pendant lights over islands or dining areas.

Creating a Plan Of Kitchen Layout

Creating a Plan Of Kitchen Layout involves several steps, from measuring the space to finalizing the design. Here is a step-by-step guide to help you through the process:

Measure the Space

Begin by measuring the dimensions of your kitchen, including the length, width, and height of the walls, as well as the location of windows, doors, and any existing plumbing or electrical outlets. Accurate measurements are crucial for creating a precise and functional layout.

Sketch the Layout

Using graph paper or a digital design tool, sketch the layout of your kitchen. Include the placement of cabinets, appliances, and countertops. Consider the work triangle and traffic flow when positioning these elements.

Choose a Layout Style

Select a layout style that best suits your kitchen size and needs. Refer to the common kitchen layouts mentioned earlier to determine which style will work best for your space.

Plan for Storage

Determine your storage needs and plan for cabinets, shelves, and pantries. Consider using pull-out shelves, lazy Susans, and other organizational tools to maximize storage space.

Select Appliances

Choose appliances that fit your needs and budget. Consider the size, style, and energy efficiency of each appliance. Ensure that the appliances are positioned in a way that allows for easy access and use.

Design the Lighting

Plan for a combination of ambient, task, and accent lighting. Include under-cabinet lighting for task areas, pendant lights over islands or dining areas, and recessed lighting for general illumination.

Finalize the Design

Review your Plan Of Kitchen Layout and make any necessary adjustments. Ensure that the layout is functional, efficient, and aesthetically pleasing. Consider consulting with a professional designer or contractor if needed.

Example of a Plan Of Kitchen Layout

Here is an example of a Plan Of Kitchen Layout for a medium-sized kitchen with an L-shaped design:

Element Placement Dimensions
Sink Corner of the L 36" x 24"
Stove Adjacent to the sink 36" x 36"
Refrigerator End of the L 36" x 72"
Cabinets Along both walls of the L Varies
Countertops Along both walls of the L Varies
Island Center of the kitchen 48" x 36"

This layout provides ample counter space, storage, and a central island for additional workspace and seating. The work triangle is efficiently designed, with the sink, stove, and refrigerator positioned for easy access.

💡 Note: Customize the dimensions and placement of elements to fit your specific kitchen size and needs.

Tips for Optimizing Your Plan Of Kitchen Layout

Here are some additional tips to help you optimize your Plan Of Kitchen Layout:

  • Consider the height of your cabinets and countertops to ensure they are comfortable for your height and needs.
  • Use pull-out shelves and lazy Susans to maximize storage space and accessibility.
  • Include a dedicated area for trash and recycling to keep the kitchen organized and clutter-free.
  • Plan for adequate ventilation with a range hood or exhaust fan to remove cooking odors and moisture.
  • Choose durable and easy-to-clean materials for countertops, flooring, and cabinets.

By following these tips and considering the key elements of a Plan Of Kitchen Layout, you can create a functional, efficient, and aesthetically pleasing kitchen that meets your needs and enhances your home.

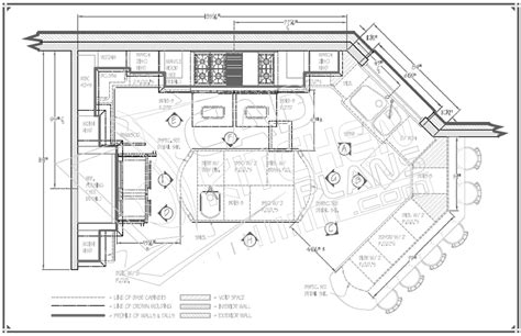
Kitchen Layout Example

In conclusion, developing a well-thought-out Plan Of Kitchen Layout is essential for creating a functional and efficient kitchen. By understanding the basics of kitchen layout, considering key elements such as the work triangle and traffic flow, and following a step-by-step process, you can design a kitchen that meets your needs and enhances your home. Whether you are renovating an existing kitchen or designing a new one, a well-planned layout will ensure that your kitchen is a enjoyable and productive space for years to come.

Related Terms:

  • basic kitchen layout types
  • kitchen layout plan dwg
  • free online kitchen planner
  • industrial kitchen layout plan
  • understanding the basic kitchen layout
  • kitchen layout plan with dimensions