Embarking on the journey to create an outdoor kitchen is an exciting venture that can transform your backyard into a culinary oasis. Whether you're a seasoned grill master or a novice cook, having a well-designed outdoor kitchen can enhance your outdoor living experience. One of the most crucial steps in this process is obtaining detailed Outdoor Kitchen Blueprints. These blueprints serve as the foundation for your project, ensuring that every element is carefully planned and executed.
Understanding Outdoor Kitchen Blueprints
Outdoor kitchen blueprints are detailed plans that outline the design, layout, and specifications of your outdoor cooking space. They include everything from the placement of appliances to the type of materials used. Having a comprehensive set of blueprints is essential for several reasons:
- Clarity and Precision: Blueprints provide a clear visual representation of your outdoor kitchen, helping you to visualize the final product.
- Cost Estimation: Detailed blueprints allow you to estimate the cost of materials and labor more accurately.
- Permit Approval: Many municipalities require detailed plans for permit approval, ensuring that your project complies with local building codes.
- Contractor Communication: Blueprints serve as a communication tool between you and your contractor, ensuring that everyone is on the same page.
Key Elements of Outdoor Kitchen Blueprints
When creating or reviewing Outdoor Kitchen Blueprints, there are several key elements to consider:
- Layout and Design: The layout should be functional and aesthetically pleasing. Consider the flow of traffic and the placement of appliances to ensure efficiency.
- Appliances: Choose appliances that suit your cooking needs. Common appliances include grills, refrigerators, sinks, and pizza ovens.
- Materials: Select durable and weather-resistant materials for countertops, cabinets, and flooring. Popular choices include stainless steel, granite, and concrete.
- Utilities: Plan for the necessary utilities, such as gas, water, and electricity. Ensure that these are properly integrated into your design.
- Lighting and Ventilation: Adequate lighting and ventilation are crucial for safety and comfort. Include task lighting for cooking areas and ambient lighting for overall illumination.
Creating Your Outdoor Kitchen Blueprints
Creating your own Outdoor Kitchen Blueprints can be a rewarding process. Here are the steps to get you started:
Step 1: Assess Your Needs
Begin by assessing your cooking and entertaining needs. Consider the following questions:
- How often will you use the outdoor kitchen?
- What types of meals will you prepare?
- How many people will you typically be cooking for?
- What is your budget for the project?
Step 2: Choose a Location
Select a location for your outdoor kitchen that is convenient and functional. Consider factors such as:
- Proximity to your indoor kitchen for easy access to ingredients and utensils.
- Shade and shelter from the elements.
- Views and ambiance.
Step 3: Sketch Your Design
Start with a rough sketch of your design. Include the placement of appliances, countertops, and seating areas. This will give you a basic idea of the layout and help you visualize the space.
๐ Note: Use graph paper or digital design tools to create accurate measurements and proportions.
Step 4: Develop Detailed Blueprints
Once you have a basic sketch, develop detailed blueprints. Include the following elements:
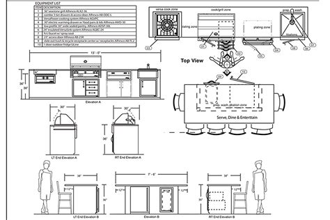
- Floor Plan: A top-down view of the layout, including dimensions and the placement of appliances and fixtures.
- Elevation Views: Side and front views that show the height and depth of various elements.
- Material List: A comprehensive list of materials needed for the project, including quantities and specifications.
- Utility Plans: Diagrams showing the placement of gas lines, water pipes, and electrical outlets.
Step 5: Review and Refine
Review your blueprints with a critical eye. Look for any potential issues or areas for improvement. Consider seeking feedback from friends, family, or a professional designer.
๐ Note: Make sure to check local building codes and regulations to ensure your design complies with all requirements.
Common Mistakes to Avoid
When creating Outdoor Kitchen Blueprints, it's important to avoid common mistakes that can lead to costly errors and delays. Here are some pitfalls to watch out for:
- Inadequate Planning: Rushing through the planning phase can result in a poorly designed kitchen that doesn't meet your needs.
- Ignoring Utilities: Failing to plan for utilities can lead to expensive and time-consuming modifications later on.
- Overlooking Ventilation: Proper ventilation is essential for safety and comfort. Ensure that your design includes adequate ventilation for cooking areas.
- Choosing the Wrong Materials: Selecting materials that are not durable or weather-resistant can lead to premature wear and tear.
- Neglecting Lighting: Insufficient lighting can make cooking and entertaining difficult and unsafe.
Professional vs. DIY Blueprints
When it comes to creating Outdoor Kitchen Blueprints, you have two main options: hiring a professional or doing it yourself. Each approach has its own advantages and disadvantages.
Professional Blueprints
Hiring a professional designer or architect to create your blueprints can offer several benefits:
- Expertise and Experience: Professionals have the knowledge and experience to create functional and aesthetically pleasing designs.
- Customization: A professional can tailor the design to your specific needs and preferences.
- Compliance: Professionals are familiar with local building codes and regulations, ensuring that your design complies with all requirements.
DIY Blueprints
Creating your own blueprints can be a cost-effective and rewarding option. Here are some advantages:
- Cost Savings: Doing it yourself can save you money on design fees.
- Personal Touch: You have complete control over the design and can customize it to your exact specifications.
- Learning Experience: Creating your own blueprints can be a valuable learning experience.
However, it's important to consider your skills and limitations. If you're not confident in your design abilities, it may be worth investing in professional help.
๐ Note: Even if you choose to create your own blueprints, consider consulting with a professional for advice and guidance.
Example of Outdoor Kitchen Blueprints
To give you a better idea of what Outdoor Kitchen Blueprints should include, here is an example of a basic layout:
| Element | Description | Dimensions |
|---|---|---|
| Grill Station | Includes a built-in grill, side burner, and storage cabinets. | 6' x 3' |
| Prep Area | Countertop space for food preparation, with a sink and cutting board. | 4' x 2' |
| Refrigerator | Built-in outdoor refrigerator for storing perishable items. | 2' x 2' |
| Seating Area | Counter-height bar with stools for additional seating. | 8' x 2' |
| Storage Cabinets | Cabinets for storing cooking utensils, dishes, and other supplies. | 4' x 2' |

Finalizing Your Outdoor Kitchen Blueprints
Once you have created your Outdoor Kitchen Blueprints, it's time to finalize the details. Here are some steps to ensure a successful project:
Step 1: Review and Approve
Carefully review your blueprints to ensure that all elements are included and accurately represented. Make any necessary revisions and get final approval from all stakeholders.
Step 2: Obtain Permits
Check with your local building department to determine if you need permits for your project. Submit your blueprints along with any required documentation.
Step 3: Hire a Contractor
If you're not doing the work yourself, hire a reputable contractor to build your outdoor kitchen. Provide them with a copy of your blueprints and discuss the project timeline and budget.
Step 4: Gather Materials
Compile a list of all the materials needed for the project. Purchase materials in advance to ensure availability and avoid delays.
Step 5: Build and Install
Follow your blueprints closely as you build and install each component of your outdoor kitchen. Regularly inspect the work to ensure it meets your standards and specifications.
๐ Note: Maintain open communication with your contractor throughout the project to address any issues or concerns promptly.
Creating a functional and beautiful outdoor kitchen requires careful planning and attention to detail. By following these steps and utilizing detailed Outdoor Kitchen Blueprints, you can transform your backyard into a culinary haven that you and your family will enjoy for years to come.
Your outdoor kitchen is more than just a cooking space; itโs a gathering place for friends and family. With the right design and blueprints, you can create a space that reflects your style and meets your needs. Whether you choose to hire a professional or tackle the project yourself, the key to success lies in thorough planning and execution.
Related Terms:
- 8x8 outdoor kitchen ideas plans
- b&q outdoor kitchen ideas
- b&q outdoor kitchen plans
- build it yourself outdoor kitchen
- outdoor kitchen printable plans free
- build your own backyard kitchen