Maximum Stair Riser Height

Maximum Stair Riser Height

Staircases are an essential part of any multi-story building, providing a means of vertical transportation. However, designing a staircase involves more than just aesthetics; it also requires adherence to safety standards and building codes. One critical aspect of staircase design is the Maximum Stair Riser Height. This measurement is crucial for ensuring the safety and comfort of users, especially in residential and commercial settings.

Understanding Stair Riser Height

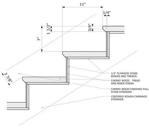
The stair riser is the vertical distance between two consecutive steps. The Maximum Stair Riser Height is a critical measurement that ensures the staircase is safe and comfortable to use. According to most building codes, the maximum riser height should not exceed 7 inches (178 mm). This standard is designed to prevent users from tripping or falling, which can lead to serious injuries.

Importance of Adhering to Maximum Stair Riser Height

Adhering to the Maximum Stair Riser Height is not just a matter of compliance with building codes; it is also a matter of safety and accessibility. Here are some key reasons why it is important:

  • Safety: A staircase with risers that are too high can increase the risk of falls, especially for children, the elderly, and individuals with mobility issues.
  • Comfort: Stairs that are too high can be uncomfortable to climb, leading to fatigue and discomfort for users.
  • Accessibility: For individuals with disabilities, adhering to the Maximum Stair Riser Height ensures that the staircase is accessible and usable.
  • Legal Compliance: Building codes and regulations often specify the maximum riser height to ensure safety and accessibility. Non-compliance can result in legal issues and fines.

Calculating Stair Riser Height

Calculating the Maximum Stair Riser Height involves measuring the vertical distance between the nosings of two consecutive steps. Here is a step-by-step guide to calculating the riser height:

  1. Measure the total vertical distance from the floor to the landing or the next floor.
  2. Divide this distance by the number of steps to determine the average riser height.
  3. Ensure that the calculated riser height does not exceed the maximum allowable height of 7 inches (178 mm).

📏 Note: It is essential to measure accurately and double-check calculations to ensure compliance with building codes.

Designing Stairs with Optimal Riser Height

Designing stairs with an optimal riser height involves balancing aesthetics, functionality, and safety. Here are some tips for designing stairs with the correct riser height:

  • Consistent Riser Height: Ensure that the riser height is consistent throughout the staircase to avoid tripping hazards.
  • Comfortable Tread Depth: The tread depth (the horizontal distance between the nosings of two consecutive steps) should be comfortable for users. A common guideline is a tread depth of at least 10 inches (254 mm).
  • Handrails and Guardrails: Install handrails and guardrails to provide additional support and safety, especially for stairs with higher risers.
  • Lighting: Adequate lighting is crucial for safety, especially on stairs with higher risers. Ensure that the staircase is well-lit to prevent accidents.

Building Codes and Regulations

Building codes and regulations vary by region, but most have specific guidelines for the Maximum Stair Riser Height. Here is a table summarizing some common building codes:

Region Maximum Riser Height Notes
United States 7 inches (178 mm) According to the International Residential Code (IRC) and the International Building Code (IBC).
Canada 7.5 inches (190 mm) According to the National Building Code of Canada.
United Kingdom 220 mm (8.66 inches) According to the Building Regulations 2010.
Australia 180 mm (7.09 inches) According to the National Construction Code (NCC).

Common Mistakes to Avoid

When designing stairs, it is essential to avoid common mistakes that can compromise safety and compliance. Here are some mistakes to avoid:

  • Inconsistent Riser Heights: Varying riser heights can create tripping hazards and make the staircase uncomfortable to use.
  • Exceeding Maximum Riser Height: Exceeding the Maximum Stair Riser Height can lead to safety issues and non-compliance with building codes.
  • Inadequate Tread Depth: Insufficient tread depth can make the staircase uncomfortable and unsafe to use.
  • Poor Lighting: Inadequate lighting can increase the risk of falls and accidents, especially on stairs with higher risers.

Case Studies and Examples

To illustrate the importance of adhering to the Maximum Stair Riser Height, let’s look at a few case studies and examples:

  • Residential Staircase: A homeowner designed a staircase with risers that exceeded the maximum allowable height. As a result, family members, especially the elderly, found it difficult and unsafe to use the stairs. The homeowner had to redesign the staircase to comply with building codes and ensure safety.
  • Commercial Building: A commercial building had stairs with inconsistent riser heights, leading to frequent tripping incidents. The building owner had to retrofit the staircase to ensure consistent riser heights and improve safety.
  • Public Space: A public library had stairs with risers that were too high, making it difficult for visitors to access different levels. The library had to redesign the staircase to comply with accessibility standards and ensure safety for all users.

These case studies highlight the importance of adhering to the Maximum Stair Riser Height and the potential consequences of non-compliance.

Staircase Riser and Tread

Conclusion

In summary, the Maximum Stair Riser Height is a critical aspect of staircase design that ensures safety, comfort, and compliance with building codes. Adhering to the maximum riser height of 7 inches (178 mm) is essential for preventing falls, ensuring accessibility, and complying with legal requirements. By following best practices and avoiding common mistakes, designers and builders can create safe and functional staircases that meet the needs of users. Whether designing a residential staircase or a commercial building, prioritizing the Maximum Stair Riser Height is crucial for ensuring the safety and well-being of all users.

Related Terms:

  • maximum stair height without landing
  • irc maximum stair riser height
  • minimum stair width
  • maximum residential stair riser height
  • maximum exterior stair riser height
  • minimum stair tread depth