Electrical Wiring Diagram House

Electrical Wiring Diagram House

Understanding the intricacies of an Electrical Wiring Diagram House is crucial for anyone involved in home construction, renovation, or maintenance. An electrical wiring diagram serves as a blueprint that outlines the electrical system's layout, including circuits, outlets, switches, and other components. This guide will walk you through the essentials of reading and creating an electrical wiring diagram for your home.

Understanding the Basics of Electrical Wiring Diagrams

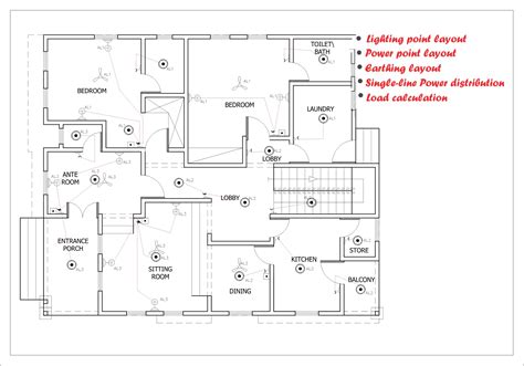
An Electrical Wiring Diagram House is a detailed schematic that illustrates the electrical connections and components within a residential building. It provides a visual representation of how electrical power is distributed throughout the house, ensuring that all devices and appliances receive the necessary power supply. Key elements of an electrical wiring diagram include:

  • Circuit Breakers: These are safety devices that protect the electrical system from overloads and short circuits.
  • Wiring: Conductors that carry electrical current from the power source to various outlets and devices.
  • Outlets and Switches: Points where electrical devices can be connected or controlled.
  • Grounding: A safety feature that directs excess electrical current to the ground, preventing electrical shocks.

Reading an Electrical Wiring Diagram

To effectively use an Electrical Wiring Diagram House, you need to understand its symbols and layout. Here are the steps to read a wiring diagram:

  1. Identify the Power Source: Locate the main power source, usually indicated by a large rectangle or a symbol representing the electrical panel.
  2. Follow the Circuits: Trace the lines from the power source to the various circuits. Each circuit is typically represented by a different color or line style.
  3. Understand the Symbols: Familiarize yourself with common symbols such as outlets, switches, and junction boxes. These symbols are standardized and can be found in most electrical diagrams.
  4. Check for Grounding: Ensure that all circuits are properly grounded. Grounding symbols are usually represented by a triangle or a ground symbol.

Here is a simple table of common symbols you might encounter in an Electrical Wiring Diagram House:

Symbol Description
Outlet
O Switch
Ground
Wire
Power Source

🔍 Note: Always refer to the legend provided with the diagram for accurate symbol interpretations.

Creating an Electrical Wiring Diagram

Creating an Electrical Wiring Diagram House involves several steps, from planning to execution. Here’s a step-by-step guide:

  1. Plan the Layout: Start by sketching the floor plan of your house. Mark the locations of all outlets, switches, and appliances.
  2. Determine Circuit Requirements: Calculate the power requirements for each circuit. This includes the number of outlets, switches, and the type of appliances that will be connected.
  3. Choose the Right Wires: Select the appropriate gauge and type of wire for each circuit. Common types include 12-gauge and 14-gauge wires.
  4. Draw the Diagram: Use standard symbols to create a detailed diagram. Include all components and their connections.
  5. Label the Diagram: Clearly label each component and circuit. This will make it easier to understand and follow during installation.

Here is an example of how to label a simple circuit in an Electrical Wiring Diagram House:

Example Electrical Wiring Diagram

🛠️ Note: Always double-check your diagram for accuracy before starting any electrical work.

Safety Considerations

Working with electrical systems can be dangerous if not handled properly. Here are some safety considerations to keep in mind when dealing with an Electrical Wiring Diagram House:

  • Turn Off Power: Always turn off the power at the main circuit breaker before starting any electrical work.
  • Use Proper Tools: Ensure you have the right tools for the job, including insulated screwdrivers, wire strippers, and voltage testers.
  • Follow Codes and Standards: Adhere to local electrical codes and standards to ensure safety and compliance.
  • Avoid Overloading Circuits: Do not overload circuits with too many devices or appliances.

Here are some common electrical codes and standards to be aware of:

  • National Electrical Code (NEC)
  • International Electrotechnical Commission (IEC) Standards
  • Local Building Codes

⚠️ Note: Always consult with a licensed electrician if you are unsure about any aspect of electrical work.

Common Mistakes to Avoid

When working with an Electrical Wiring Diagram House, it’s essential to avoid common mistakes that can lead to safety hazards or system failures. Here are some pitfalls to watch out for:

  • Incorrect Wire Gauge: Using the wrong gauge of wire can lead to overheating and potential fires.
  • Improper Grounding: Failing to ground circuits properly can result in electrical shocks.
  • Overloading Circuits: Connecting too many devices to a single circuit can cause overloads and tripped breakers.
  • Ignoring Safety Codes: Not following electrical codes and standards can lead to unsafe conditions and potential legal issues.

🛑 Note: Regularly inspect your electrical system to identify and fix any issues promptly.

Maintaining Your Electrical System

Regular maintenance of your electrical system is crucial for ensuring its longevity and safety. Here are some tips for maintaining your Electrical Wiring Diagram House:

  • Inspect Wiring Regularly: Check for any signs of wear, damage, or corrosion in the wiring.
  • Test Circuit Breakers: Periodically test your circuit breakers to ensure they are functioning correctly.
  • Update Outdated Components: Replace any outdated or damaged components, such as outlets and switches.
  • Keep the Diagram Updated: Update your electrical wiring diagram whenever you make changes to the system.

Here is an example of a maintenance checklist for your electrical system:

  • Check for loose connections
  • Inspect for frayed or damaged wires
  • Test all outlets and switches
  • Ensure proper grounding
  • Update the wiring diagram

🔧 Note: Regular maintenance can prevent costly repairs and ensure the safety of your electrical system.

An Electrical Wiring Diagram House is an invaluable tool for anyone involved in home electrical work. By understanding how to read and create these diagrams, you can ensure that your electrical system is safe, efficient, and compliant with all relevant codes and standards. Regular maintenance and adherence to safety guidelines will help you avoid common mistakes and keep your electrical system in optimal condition.

Related Terms:

  • basic residential electrical wiring diagram
  • complete electrical house wiring diagram
  • basic home electrical wiring diagram
  • typical house wiring diagram
  • basic electrical wiring diagram
  • electrical wiring blueprints