Designing a functional and inviting basement is a fantastic way to maximize your home's living space. Whether you're planning a cozy family room, a home office, or a dedicated entertainment area, understanding the intricacies of basement floor plans is crucial. This guide will walk you through the essentials of designing a basement floor plan, from assessing your space to implementing practical design tips.
Assessing Your Basement Space
Before diving into the design process, it's essential to evaluate your basement space thoroughly. This step involves measuring the area, identifying structural elements, and considering any existing utilities.
Start by measuring the length, width, and height of your basement. This information will help you determine the total square footage and understand the limitations of your space. Next, identify any structural elements such as load-bearing walls, beams, and columns that cannot be moved or altered. These elements are crucial for the stability of your home and must be considered in your basement floor plans.
Additionally, assess the location of existing utilities like plumbing, electrical wiring, and HVAC systems. Knowing where these utilities are located will help you avoid costly mistakes and ensure that your design is both functional and safe.
Determining the Purpose of Your Basement
One of the first decisions you'll need to make is determining the primary purpose of your basement. This will guide your design choices and help you create a space that meets your specific needs. Here are some common uses for basements:
- Family Room: A cozy space for relaxation and entertainment.
- Home Office: A dedicated workspace for remote work or study.
- Entertainment Area: A space for gaming, movie nights, or hosting parties.
- Guest Suite: A private area for visitors with a bedroom and bathroom.
- Home Gym: A fitness area equipped with exercise equipment.
Consider your family's needs and lifestyle when deciding on the purpose of your basement. A multi-purpose space can also be a great option if you need flexibility.
Designing Your Basement Floor Plan
Once you have a clear understanding of your space and its intended use, you can begin designing your basement floor plans. This involves creating a layout that maximizes functionality and aesthetics. Here are some key considerations:
Layout and Flow
The layout of your basement should promote a smooth flow of traffic and make the space feel inviting. Consider the placement of doors, windows, and staircases to ensure easy access and movement. Use furniture and decor to create distinct zones within the space, such as a seating area, a workspace, or a play area.
Lighting
Basements often lack natural light, so it's essential to plan for adequate artificial lighting. Incorporate a mix of ambient, task, and accent lighting to create a well-lit and inviting space. Consider using recessed lighting, floor lamps, and table lamps to achieve the desired effect.
Flooring
Choosing the right flooring for your basement is crucial for both aesthetics and functionality. Opt for durable, moisture-resistant materials that can withstand the unique challenges of a basement environment. Popular choices include:
- Vinyl Plank Flooring: Waterproof and easy to install.
- Laminate Flooring: Durable and available in various styles.
- Concrete Flooring: Stylish and low-maintenance.
- Carpet: Comfortable and warm, but may require a moisture barrier.
Walls and Ceilings
Basement walls and ceilings can significantly impact the overall look and feel of the space. Consider using drywall or paneling to create a finished look. For ceilings, options include drop ceilings, suspended ceilings, or exposed beams, depending on your design preferences and structural requirements.
Storage Solutions
Basements often serve as storage areas, so incorporating efficient storage solutions is essential. Utilize built-in shelves, cabinets, and closets to maximize storage space without compromising the overall design. Consider using under-stair storage or wall-mounted shelves to make the most of every inch of your basement.
Practical Design Tips for Basement Floor Plans
Here are some practical design tips to help you create a functional and inviting basement space:
- Keep it Bright: Use light colors and reflective surfaces to maximize light and create a spacious feel.
- Add Personal Touches: Incorporate artwork, photos, and decorative items that reflect your personality and style.
- Create Zones: Use area rugs, furniture placement, and lighting to define different zones within the space.
- Consider Acoustics: If you plan to use the basement for entertainment or music, consider soundproofing materials to improve acoustics.
- Plan for Moisture: Ensure proper ventilation and consider using a dehumidifier to control moisture levels and prevent mold growth.
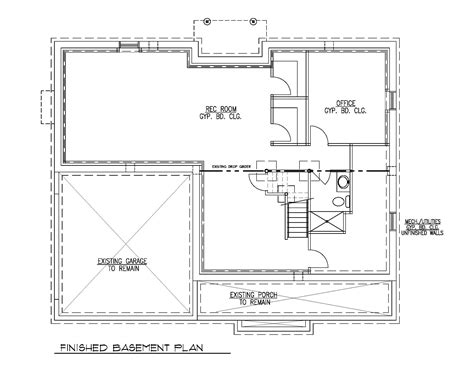
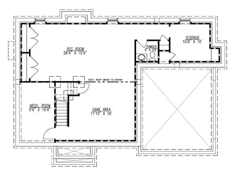
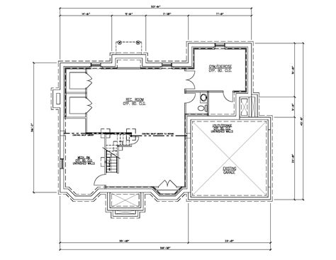
Example Basement Floor Plans
To give you a better idea of how to design your basement, here are some example basement floor plans for different purposes:
Family Room Basement
| Area | Dimensions | Features |
|---|---|---|
| Seating Area | 12' x 15' | Comfortable sofa, coffee table, TV |
| Play Area | 10' x 10' | Toys, books, play mat |
| Storage | 5' x 8' | Built-in shelves, cabinets |
Home Office Basement
| Area | Dimensions | Features |
|---|---|---|
| Workstation | 8' x 10' | Desk, chair, computer |
| Meeting Area | 10' x 10' | Conference table, chairs |
| Storage | 5' x 8' | Filing cabinets, shelves |
Entertainment Area Basement
| Area | Dimensions | Features |
|---|---|---|
| Game Room | 15' x 20' | Pool table, dartboard, gaming console |
| Home Theater | 12' x 15' | Projector, screen, seating |
| Bar Area | 8' x 10' | Mini-fridge, bar stools, counter |
💡 Note: These are just examples. Adjust the dimensions and features to fit your specific needs and space.
Final Touches and Decor
Once you have the basic layout and design elements in place, it's time to add the final touches and decor. This includes choosing furniture, selecting decor items, and adding personal touches that make the space uniquely yours. Consider the following tips:
- Furniture Selection: Choose furniture that is both functional and stylish. Opt for pieces that fit well within the space and provide comfort and convenience.
- Decor Items: Add decorative items such as throw pillows, rugs, and wall art to enhance the aesthetic appeal of your basement.
- Personal Touches: Incorporate items that reflect your personality and interests, such as family photos, memorabilia, or artwork.
By carefully selecting furniture and decor, you can create a basement that is not only functional but also visually appealing and inviting.
Designing a basement floor plan requires careful planning and consideration of various factors. By assessing your space, determining its purpose, and implementing practical design tips, you can create a basement that meets your needs and enhances your home’s overall value. Whether you’re planning a cozy family room, a dedicated home office, or an entertainment area, a well-designed basement can provide endless possibilities for enjoyment and functionality.
Related Terms:
- affordable home plans with basement
- basement floor design
- finished walkout basement floor plans
- walkout basement floor plans
- floor plans with finished basement
- basement apartment floor plans