Angled Parking Space Dimensions

Angled Parking Space Dimensions

Parking spaces are an essential component of any well-designed infrastructure, whether it's a residential complex, a commercial building, or a public parking lot. Among the various types of parking spaces, angled parking spaces are particularly popular due to their efficient use of space and ease of maneuvering. Understanding the angled parking space dimensions is crucial for designers, architects, and urban planners to ensure optimal utilization of available land and to provide a convenient parking experience for users.

Understanding Angled Parking Space Dimensions

Angled parking spaces are designed at an angle to the curb or the parking aisle, typically ranging from 30 to 60 degrees. This design allows for more efficient use of space compared to perpendicular or parallel parking. The dimensions of angled parking spaces can vary based on the angle and the type of vehicles they are intended to accommodate. However, there are standard guidelines that are widely accepted in the industry.

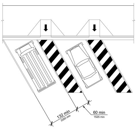
Standard Angled Parking Space Dimensions

The standard dimensions for angled parking spaces are generally based on the angle of the parking space. The most common angles are 45 degrees, 60 degrees, and 90 degrees. Here are the typical dimensions for each:

Angle Length (feet) Width (feet) Total Space (feet)
45 Degrees 18 9 162
60 Degrees 18 8.5 153
90 Degrees 18 9 162

These dimensions are designed to accommodate standard passenger vehicles. However, it's important to consider the specific needs of the location and the types of vehicles that will be using the parking spaces. For example, if the parking lot is intended for larger vehicles such as SUVs or trucks, the dimensions may need to be adjusted accordingly.

Factors Affecting Angled Parking Space Dimensions

Several factors can influence the dimensions of angled parking spaces. These include:

  • Vehicle Size: The size of the vehicles that will be using the parking spaces is a critical factor. Larger vehicles require more space, both in length and width.
  • Angle of Parking: The angle at which the parking spaces are designed can affect the overall dimensions. A steeper angle may require more space to allow for easy maneuvering.
  • Traffic Flow: The flow of traffic in and out of the parking lot can also impact the dimensions. Adequate space must be provided for vehicles to enter and exit the parking spaces safely.
  • Accessibility: For parking lots that need to accommodate disabled individuals, additional space may be required to ensure compliance with accessibility standards.

Considering these factors can help in designing angled parking spaces that are both efficient and user-friendly.

Designing Angled Parking Spaces

Designing angled parking spaces involves more than just determining the dimensions. It also includes planning the layout, ensuring adequate access, and considering safety features. Here are some key steps in the design process:

  • Site Assessment: Conduct a thorough assessment of the site to determine the available space and any potential constraints.
  • Vehicle Analysis: Analyze the types of vehicles that will be using the parking spaces to determine the appropriate dimensions.
  • Layout Planning: Plan the layout of the parking spaces, including the angle, spacing, and access points.
  • Safety Features: Incorporate safety features such as clear signage, adequate lighting, and barriers to prevent accidents.
  • Accessibility: Ensure that the design complies with accessibility standards, including providing designated spaces for disabled individuals.

By following these steps, designers can create angled parking spaces that are both efficient and safe for users.

📝 Note: It's important to consult local regulations and guidelines when designing angled parking spaces to ensure compliance with all relevant standards and requirements.

Benefits of Angled Parking Spaces

Angled parking spaces offer several benefits over other types of parking spaces. Some of the key advantages include:

  • Efficient Use of Space: Angled parking spaces allow for more efficient use of available land, making them ideal for areas with limited space.
  • Ease of Maneuvering: The angled design makes it easier for drivers to enter and exit the parking spaces, reducing the risk of accidents.
  • Improved Traffic Flow: Angled parking spaces can help improve traffic flow by reducing the time it takes for vehicles to enter and exit the parking lot.
  • Increased Capacity: By allowing for more efficient use of space, angled parking spaces can increase the overall capacity of a parking lot.

These benefits make angled parking spaces a popular choice for many parking lot designs.

Challenges of Angled Parking Spaces

While angled parking spaces offer many advantages, they also come with some challenges. Some of the potential issues include:

  • Complex Layout: The angled design can make the layout more complex, requiring careful planning and design.
  • Increased Cost: The additional space required for angled parking spaces can increase the overall cost of the parking lot.
  • Potential for Confusion: Drivers who are not familiar with angled parking spaces may find them confusing, leading to potential accidents or misuse of the spaces.

Addressing these challenges requires careful planning and consideration of all factors involved in the design process.

📝 Note: Providing clear signage and instructions can help mitigate the potential for confusion and ensure that drivers use the angled parking spaces correctly.

Case Studies of Angled Parking Spaces

To better understand the practical application of angled parking spaces, let's look at a couple of case studies:

Case Study 1: Urban Parking Lot

In a densely populated urban area, a parking lot was designed with angled parking spaces to maximize the use of limited space. The parking lot was designed with 45-degree angled spaces, allowing for efficient use of the available land. The design included clear signage, adequate lighting, and barriers to ensure safety. The result was a parking lot that could accommodate more vehicles than a traditional perpendicular or parallel parking lot, while also providing a safer and more convenient parking experience for users.

Case Study 2: Commercial Parking Garage

A commercial parking garage was designed with 60-degree angled parking spaces to improve traffic flow and increase capacity. The design included multiple levels, with angled spaces on each level to maximize the use of vertical space. The garage also included designated spaces for disabled individuals and clear signage to guide drivers. The result was a parking garage that could accommodate a large number of vehicles while providing a safe and efficient parking experience.

These case studies demonstrate the practical benefits of angled parking spaces and how they can be effectively implemented in various settings.

Angled parking spaces are a versatile and efficient solution for parking lot design. By understanding the angled parking space dimensions and considering the various factors involved, designers can create parking spaces that are both efficient and user-friendly. Whether in an urban setting or a commercial parking garage, angled parking spaces offer numerous benefits that make them a popular choice for many parking lot designs.

In conclusion, angled parking spaces are a crucial component of modern parking lot design. Their efficient use of space, ease of maneuvering, and improved traffic flow make them an ideal choice for many applications. By carefully considering the dimensions, layout, and safety features, designers can create angled parking spaces that meet the needs of users and comply with all relevant standards and regulations. The benefits of angled parking spaces, including increased capacity and improved traffic flow, make them a valuable addition to any parking lot design. Whether in an urban setting or a commercial parking garage, angled parking spaces offer a practical and efficient solution for parking needs.

Related Terms:

  • typical angled parking dimensions
  • 30 degree angled parking dimensions
  • 45 degree angled parking dimensions
  • angled parking layout dimensions
  • 45 degree parking lot dimensions
  • 60 degree angled parking dimensions