Ada Bathroom Layout

Ada Bathroom Layout

Designing a functional and aesthetically pleasing bathroom is a crucial aspect of home improvement. One layout that has gained significant attention is the Ada Bathroom Layout. This layout is designed to accommodate individuals with disabilities, ensuring accessibility and safety. Whether you are renovating an existing bathroom or planning a new one, understanding the Ada Bathroom Layout can help you create a space that is both practical and inclusive.

Understanding the Ada Bathroom Layout

The Ada Bathroom Layout is based on the Americans with Disabilities Act (ADA) guidelines, which provide specifications for accessible design. These guidelines ensure that bathrooms are usable by people with a wide range of abilities. Key features of an Ada Bathroom Layout include:

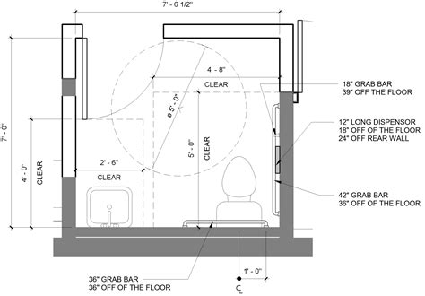
  • Wide Doorways: Doors should be at least 32 inches wide to accommodate wheelchairs and other mobility aids.
  • Clear Floor Space: There should be a minimum of 30 inches by 48 inches of clear floor space for maneuvering.
  • Grab Bars: Install grab bars near the toilet and in the shower or bathtub area to provide support and stability.
  • Accessible Fixtures: Sinks, toilets, and other fixtures should be at heights that are easily reachable from a seated position.
  • Non-Slip Surfaces: Floors and shower areas should have non-slip surfaces to prevent falls.

Planning Your Ada Bathroom Layout

Planning an Ada Bathroom Layout involves careful consideration of space, fixtures, and accessibility features. Here are the steps to help you get started:

Assess Your Space

Begin by measuring your bathroom to determine the available space. Consider the placement of doors, windows, and existing plumbing. This will help you decide on the best layout for your bathroom.

Choose the Right Fixtures

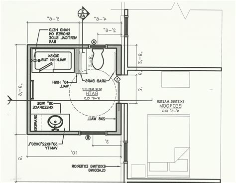
Select fixtures that comply with ADA guidelines. For example, choose a toilet with a seat height of 17 to 19 inches and a sink with a clearance of at least 27 inches from the floor to the bottom of the sink. Additionally, consider installing a roll-in shower or a walk-in tub for easier access.

Install Grab Bars

Grab bars are essential for safety and support. Install them near the toilet and in the shower or bathtub area. Ensure they are securely fastened to the wall and can support at least 250 pounds of weight.

Create Clear Floor Space

Ensure there is enough clear floor space for maneuvering. This includes a 30-inch by 48-inch area in front of the sink, toilet, and shower. This space allows for easy movement and use of mobility aids.

Use Non-Slip Surfaces

Choose non-slip materials for your flooring and shower area. This can include textured tiles, non-slip mats, or specialized coatings. Non-slip surfaces help prevent falls and provide a safer environment.

Designing for Accessibility

Designing an accessible bathroom involves more than just following ADA guidelines. It also requires a thoughtful approach to aesthetics and functionality. Here are some tips to help you create a beautiful and accessible bathroom:

Select Appropriate Materials

Choose materials that are durable, easy to clean, and visually appealing. For example, use ceramic or porcelain tiles for flooring and walls, as they are non-porous and resistant to moisture. Consider using contrasting colors for better visibility and safety.

Optimize Lighting

Good lighting is essential for safety and functionality. Install bright, energy-efficient lighting fixtures and ensure there are no dark corners. Consider using motion-sensor lights for added convenience and safety.

Add Storage Solutions

Incorporate storage solutions that are easily accessible. This can include open shelving, wall-mounted cabinets, or pull-out drawers. Ensure that storage areas are within reach and do not obstruct clear floor space.

Consider Color and Texture

Use color and texture to create a visually appealing and functional space. Choose a color scheme that is calming and inviting, and use textures to add depth and interest. For example, use textured tiles or wallpaper to create a focal point.

Common Mistakes to Avoid

When designing an Ada Bathroom Layout, it's important to avoid common mistakes that can compromise accessibility and functionality. Here are some pitfalls to watch out for:

  • Insufficient Clearance: Ensure there is enough clearance around fixtures and in doorways. Insufficient clearance can make it difficult for individuals with mobility aids to navigate the space.
  • Improper Grab Bar Placement: Grab bars should be installed at the correct height and location. Improper placement can make them ineffective and potentially dangerous.
  • Slippery Surfaces: Avoid using materials that are slippery when wet. This can increase the risk of falls and injuries.
  • Inadequate Lighting: Poor lighting can make it difficult to see and navigate the bathroom. Ensure there is adequate lighting throughout the space.
  • Cluttered Storage: Avoid cluttered storage areas that can obstruct movement and make it difficult to access items. Use organized storage solutions to keep the space tidy.

📝 Note: Always consult with a professional designer or contractor who is familiar with ADA guidelines to ensure your bathroom meets all accessibility requirements.

Case Studies: Successful Ada Bathroom Layouts

To gain inspiration and insights, let's look at some successful Ada Bathroom Layouts that have been implemented in various settings:

Residential Bathroom

In a residential setting, a homeowner wanted to create an accessible bathroom for an aging parent. The layout included a roll-in shower with a built-in seat, grab bars, and a non-slip floor. The sink and toilet were at accessible heights, and there was ample clear floor space for maneuvering. The result was a functional and aesthetically pleasing bathroom that met all ADA guidelines.

Public Restroom

A public restroom in a community center was redesigned to be more accessible. The layout featured wide doorways, clear floor space, and grab bars near the toilet and sink. The shower area was equipped with a roll-in shower and non-slip surfaces. The design ensured that individuals with disabilities could use the restroom safely and comfortably.

Hotel Bathroom

A hotel aimed to provide accessible bathrooms for guests with disabilities. The layout included a walk-in tub, grab bars, and non-slip surfaces. The sink and toilet were at accessible heights, and there was ample clear floor space for maneuvering. The design not only met ADA guidelines but also enhanced the overall guest experience.

The future of Ada Bathroom Layouts is focused on innovation and technology. Here are some trends to watch out for:

Smart Technology

Smart technology is increasingly being integrated into bathroom design. This includes features like voice-activated faucets, motion-sensor lights, and automated toilets. These technologies can enhance accessibility and convenience for individuals with disabilities.

Universal Design

Universal design principles are being adopted to create bathrooms that are accessible to everyone, regardless of age or ability. This includes features like adjustable-height sinks, easy-to-use fixtures, and non-slip surfaces. Universal design ensures that bathrooms are functional and inclusive for all users.

Sustainable Materials

There is a growing emphasis on using sustainable materials in bathroom design. This includes eco-friendly tiles, recycled materials, and energy-efficient fixtures. Sustainable materials not only reduce environmental impact but also contribute to a healthier living space.

Customizable Layouts

Customizable layouts allow for greater flexibility and personalization. This includes modular fixtures, adjustable storage solutions, and adaptable clear floor space. Customizable layouts ensure that bathrooms can be tailored to meet the specific needs and preferences of users.

In conclusion, the Ada Bathroom Layout is a crucial aspect of creating an accessible and functional bathroom. By following ADA guidelines and incorporating thoughtful design elements, you can create a space that is both practical and aesthetically pleasing. Whether you are renovating an existing bathroom or planning a new one, understanding the principles of the Ada Bathroom Layout can help you achieve a successful and inclusive design.

Related Terms:

  • ada bathroom requirements
  • ada bathroom layout residential
  • ada bathroom layouts commercial
  • single ada bathroom layout
  • ada bathroom layout dwg
  • small ada bathroom layout